Die Größenangaben der Wohnflächen sind aufgrund des aktuellen Umbaus unverbindlich und ohne Gewähr. Hier können sich noch minimale Änderungen ergeben.
Wohnung 1 Erdgeschoss
– RESERVIERT –

| 3-Zimmer-Wohnung | |
| Flur | 5,90 m2 |
| HWR | 3,00 m2 |
| Bad | 12,60 m2 |
| Kochen / Essen / Wohnen | 36,10 m2 |
| Schlafen | 15,70 m2 |
| Kind | 18,70 m2 |
| Terrasse (50%) | 10,00 m2 |
| Gesamt | 102,00 m2 |
Wohnung 2 Erdgeschoss

Wohnung 2 1. Obergeschoss

| 2-Zimmer-Wohnung | |
| Ebene 1 | |
| Flur | 3,40 m2 |
| WC | 3,10 m2 |
| Kochen | 8,90 m2 |
| Essen / Wohnen | 25,60 m2 |
| Terrasse (50%) | 10,00 m2 |
| Ebene 2 | |
| Flur | 1,40 m2 |
| Schlafen | 15,70 m2 |
| Abstell. | 2,00 m2 |
| Bad | 10,50 m2 |
| Gesamt | 80,60 m2 |
Wohnung 3 1. Obergeschoss

| 3-Zimmer-Wohnung | |
| Flur | 6,40 m2 |
| HWR | 3,00 m2 |
| Bad | 12,60 m2 |
| Kochen / Essen / Wohnen | 36,10 m2 |
| Schlafen | 15,70 m2 |
| Kind | 18,70 m2 |
| Balkon (50%) | 3,30 m2 |
| Gesamt | 95,80 m2 |
Wohnung 4 1. Dachgeschoss

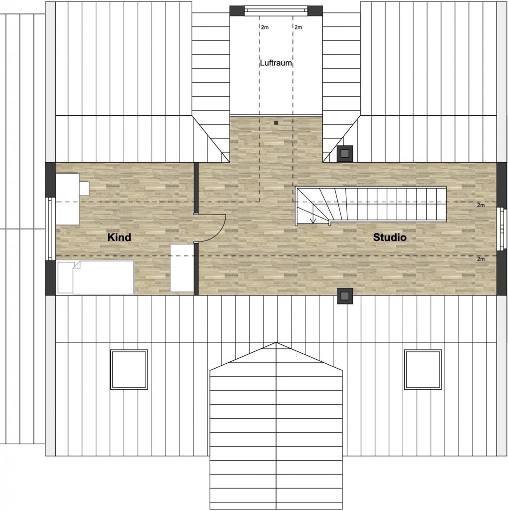
Wohnung 4 2. Dachgeschoss

| 4-Zimmer-Wohnung | |
| Ebene 1 | |
| Flur | 4,20 m2 |
| Bad | 10,40 m2 |
| Kochen | 12,10 m2 |
| Essen / Wohnen | 27,20 m2 |
| Schlafen | 13,00 m2 |
| Balkon (50%) | 2,70 m2 |
| Ebene 2 | |
| Studio | 16,70 m2 |
| Kind | 8,00 m2 |
| Gesamt | 94,30 m2 |